262 Estoria StreetAtlanta, GA 30316




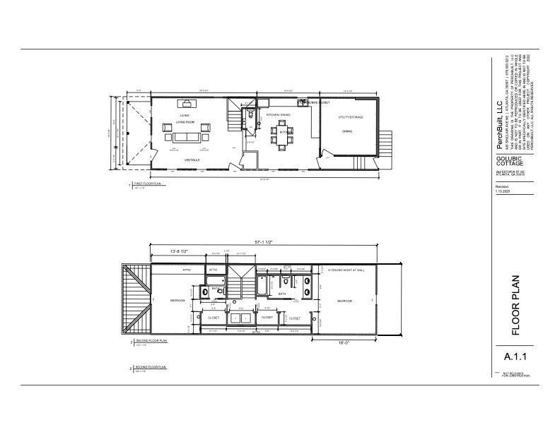
RARE CABBAGETOWN VACANT LOT - Thanks for your interest in this developed ready-to-build lot in the heart of Cabbagetown on Estoria Street. Set atop a hill overlooking the city with rear alley access, the lot is cleared, has new brick sidewalks and granite curbs, a new sewer tap, a brand new retaining wall and architectural plans for a 1960sf 2/2.5 home that is fully approved with the Urban Design Commisison and the Cabbagetown Historic Association. All a new owner needs to do is submit construction plans for final building permit at the City of Atlanta which is a straight-forward and simple process that takes 4-6 weeks. The property has approximately $50,000 of cash invested in the required sidewalks, granite curbs, sewer taps, retaining walls, surveys, architectural plans, and permitting costs. Add to that the year+ of hard work to get to the point where the homes is through the hard part of the permitting process. The value of the home, once built, will be ~1M so this is a low risk and high reward opportunity to build a dream home or to have a profitable investment project in one of the best and most central historic neighborhoods in the city.
| 2 months ago | Status changed to Active | |
| 2 months ago | Listing updated with changes from the MLS® | |
| 2 months ago | Listing first seen on site |
Listings identified with the FMLS IDX logo come from FMLS and are held by brokerage firms other than the owner of this website and the listing brokerage is identified in any listing details. Information is deemed reliable but is not guaranteed. If you believe any FMLS listing contains material that infringes your copyrighted work, please click here to review our DMCA policy and learn how to submit a takedown request.
© 2017-2026 First Multiple Listing Service, Inc.

Did you know? You can invite friends and family to your search. They can join your search, rate and discuss listings with you.